Descriptif
SION dans un quartier privilégié au Nord de la ville et agréable à vivre (mixte résidentiel et commercial), projet de 4 villas mitoyennes (au Sud du quartier résidentiel de Platta) et à 10 minutes à pied (600 m.) de la Rue du Grand-Pont et de la vieille ville emblématique. Les villas s'implantent sur un terrain en pente, libre de construction au pied de la colline de Tourbillon, un quartier des plus calme et proche de toutes les commodités à quelques pas seulement (écoles, commerces, restaurants, etc.. ). Tous vos déplacements peuvent dès lors se faire à pied.
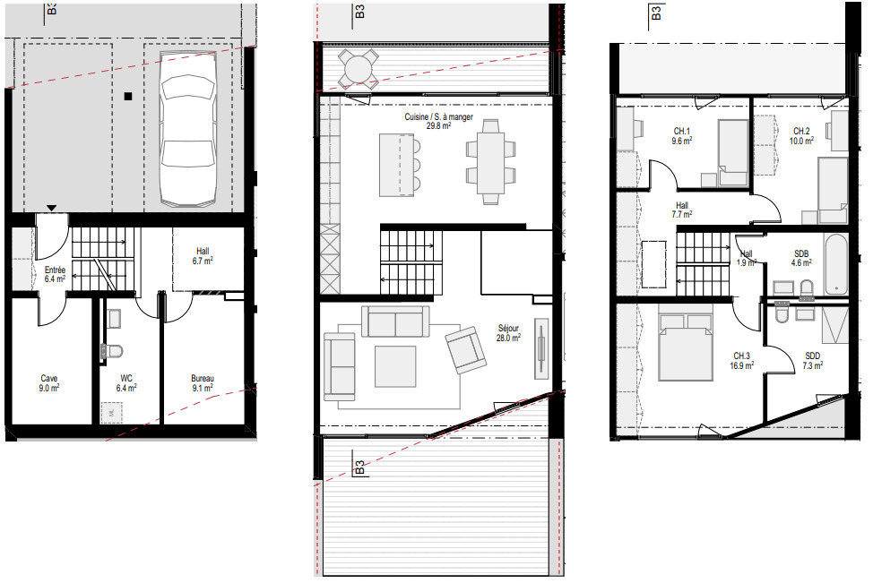
La VILLA "C" de 169 m2 proposée ici est configurée en typologie 5 pièces. Elle se situe au centre Est du petit lotissement et se déploie sur 4 demi-niveaux (triplex). Elle est composée dans les étages supérieurs de deux chambres et d'une suite parentale avec salle de douche et WC, d'une salle de bain et WC en faveur des enfants (ou invités) et en rez-jardin d'une cuisine/salle à manger donnant sur un balcon et d'un grand séjour donnant sur le jardin (ou l'inverse selon les souhaits de chacun). Un espace bureau/chambre complémentaire, une cave et un WC visiteur avec un emplacement pour une colonne de lavage complètent la villa au niveau de l'entrée, soit du rez-inférieur.
Les finitions sont au gré du preneur. Deux places de parc couvertes sont proposées dans ce produit idéal pour une vie familiale de qualité ou chacun a le loisir de pratiquer ses activités en toute indépendance. Arrêt de bus à 170 m.
Les villas sont construites selon les normes énergétiques en vigueur avec une production de chaleur par pompe à chaleur.
La VILLA "C" de 169 m2 proposée ici est configurée en typologie 5 pièces. Elle se situe au centre Est du petit lotissement et se déploie sur 4 demi-niveaux (triplex). Elle est composée dans les étages supérieurs de deux chambres et d'une suite parentale avec salle de douche et WC, d'une salle de bain et WC en faveur des enfants (ou invités) et en rez-jardin d'une cuisine/salle à manger donnant sur un balcon et d'un grand séjour donnant sur le jardin (ou l'inverse selon les souhaits de chacun). Un espace bureau/chambre complémentaire, une cave et un WC visiteur avec un emplacement pour une colonne de lavage complètent la villa au niveau de l'entrée, soit du rez-inférieur.
Les finitions sont au gré du preneur. Deux places de parc couvertes sont proposées dans ce produit idéal pour une vie familiale de qualité ou chacun a le loisir de pratiquer ses activités en toute indépendance. Arrêt de bus à 170 m.
Les villas sont construites selon les normes énergétiques en vigueur avec une production de chaleur par pompe à chaleur.
Situation
Situation privilégiée au bas de la Colline de Tourbillon (au Sud du quartier de Platta) dans un quartier calme et mixte (résidentiel et commercial) à quelques minutes à pied du coeur de la ville et de la vieille ville (10 min. à pied).
A l'arrière de la parcelle qui intègrera ce joli projet, la zone est une zone protégée et une zone forêt cadastrée.
A l'arrière de la parcelle qui intègrera ce joli projet, la zone est une zone protégée et une zone forêt cadastrée.
Commune
SION, chef-lieu du canton du Valais compte plus de 34'500 habitants.
Sion et culture : - Ses deux châteaux emblématiques : Valère et Tourbillon, ainsi que le château de la Majorie et le château de Montorge. - Les musées : le Pénitencier, le musée d’Art du Valais, la Maison de la Nature et le Musée de la Nature du Valais. - Les galeries d’Art : La fondation Fellini (maison du Diable), la Ferme Asile, entre autres… - Musique et festival : Concert « Sion sous les étoiles », concerts « Electroziles », le « Guinness Irish Festival », le « Festival de musique Classique », son programme de concerts variés au Port Franc et au Point 11. - Le réputé spectacle de « Sion en lumières » situé au pied des Châteaux de Valère et Tourbillon. - Le célèbre conservatoire et son académie de musique Tibor Varga (concours international de Violon).
Sion la dynamique, ses commerces et sa gastronomie : Sion est le plus grand centre commercial du Valais avec plus de 700 commerces et cafés restaurant répartis en ville. La ville offre une palette de différents restaurants (spécialités locales, restaurants italiens, restaurants de poisson, restaurants asiatiques, brasseries traditionnelles, la fameuse « entrecôte café de Paris », ainsi que d’excellentes tables gastronomiques).
Sion et ses écoles : - Ses Universités comme le campus EPFL- Energypolis, Valais Wallis, la HES-SO, l’institut Kurt Bösch. - Ecoles bilingues, école de commerces, cycles d’orientation, 2 lycées-collèges et ses écoles privées réputées comme Montani et Ardévaz.
Sion et ses transports : La ville de Sion est fière d’avoir eu les premières « Smart Shuttle » au monde (navettes autonomes) qui parcouraient la ville gratuitement. - Gare CFF - Sion se situe à : à 4h30 de Paris (TGV) / à 2h30 de Milan (Euro City)/ à 1h de Domodossola (Euro City) / à 2h de Genève aéroport ( Inter région) / à 2h50 de Zürich aéroport (Inter région) - Sion aéroport au cœur des ALPES.
Finalement, Sion avec sa mue urbanistique qui a commencée au début des années 2000 et qui ne cesse de se réinventer encore aujourd’hui, pour plus de charmes, plus de convivialités, plus de mobilité douce, le charme de la vieille ville et ses aménagements en sont la preuve au quotidien, avec son marché très animé du vendredi (le plus important marché de Suisse romande).
Toutes les informations sur www.sion.ch
Sion et culture : - Ses deux châteaux emblématiques : Valère et Tourbillon, ainsi que le château de la Majorie et le château de Montorge. - Les musées : le Pénitencier, le musée d’Art du Valais, la Maison de la Nature et le Musée de la Nature du Valais. - Les galeries d’Art : La fondation Fellini (maison du Diable), la Ferme Asile, entre autres… - Musique et festival : Concert « Sion sous les étoiles », concerts « Electroziles », le « Guinness Irish Festival », le « Festival de musique Classique », son programme de concerts variés au Port Franc et au Point 11. - Le réputé spectacle de « Sion en lumières » situé au pied des Châteaux de Valère et Tourbillon. - Le célèbre conservatoire et son académie de musique Tibor Varga (concours international de Violon).
Sion la dynamique, ses commerces et sa gastronomie : Sion est le plus grand centre commercial du Valais avec plus de 700 commerces et cafés restaurant répartis en ville. La ville offre une palette de différents restaurants (spécialités locales, restaurants italiens, restaurants de poisson, restaurants asiatiques, brasseries traditionnelles, la fameuse « entrecôte café de Paris », ainsi que d’excellentes tables gastronomiques).
Sion et ses écoles : - Ses Universités comme le campus EPFL- Energypolis, Valais Wallis, la HES-SO, l’institut Kurt Bösch. - Ecoles bilingues, école de commerces, cycles d’orientation, 2 lycées-collèges et ses écoles privées réputées comme Montani et Ardévaz.
Sion et ses transports : La ville de Sion est fière d’avoir eu les premières « Smart Shuttle » au monde (navettes autonomes) qui parcouraient la ville gratuitement. - Gare CFF - Sion se situe à : à 4h30 de Paris (TGV) / à 2h30 de Milan (Euro City)/ à 1h de Domodossola (Euro City) / à 2h de Genève aéroport ( Inter région) / à 2h50 de Zürich aéroport (Inter région) - Sion aéroport au cœur des ALPES.
Finalement, Sion avec sa mue urbanistique qui a commencée au début des années 2000 et qui ne cesse de se réinventer encore aujourd’hui, pour plus de charmes, plus de convivialités, plus de mobilité douce, le charme de la vieille ville et ses aménagements en sont la preuve au quotidien, avec son marché très animé du vendredi (le plus important marché de Suisse romande).
Toutes les informations sur www.sion.ch
Commerces
Cafés, commerces (Migros du Nord), boutiques et petits commerces de la vieille ville, office de poste,..etc.. accessibles en quelques minutes (entre 10 et 15 minutes à pied).
Ecoles:
- pour écoles UAPE, enfantines, primaires et cycles d'orientation dans un rayon de 300 à 1'700 m.
Santé :
- pharmacies au centre-ville, à env. 750 m.
- permanence médicale, médecins, physiothérapeutes au centre-ville, entre 850 et 2'800 m.
- Clinique de Valère au centre-ville à env. 1'400 m.
- Hôpital de Sion et Clinque de la SUVA, à env. 3'000 m.
Ecoles:
- pour écoles UAPE, enfantines, primaires et cycles d'orientation dans un rayon de 300 à 1'700 m.
Santé :
- pharmacies au centre-ville, à env. 750 m.
- permanence médicale, médecins, physiothérapeutes au centre-ville, entre 850 et 2'800 m.
- Clinique de Valère au centre-ville à env. 1'400 m.
- Hôpital de Sion et Clinque de la SUVA, à env. 3'000 m.
Transports
- arrêt de bus à 170 m.
- gare postale secondaire du Ritz à 630 m.
- gare postale, la plus importante de Suisse en nombre de destinations à env. 20-25 min. à pied (1'700 m.)
- gare CFF à env. 20-25 min. à pied (1'700 m.)
- aéroport de Sion à env. 3'000 m., soit 7 min. en voiture
- accès A9, sortie de Sion-Est à 1'800 m., à 3 min. en voiture
- gare postale secondaire du Ritz à 630 m.
- gare postale, la plus importante de Suisse en nombre de destinations à env. 20-25 min. à pied (1'700 m.)
- gare CFF à env. 20-25 min. à pied (1'700 m.)
- aéroport de Sion à env. 3'000 m., soit 7 min. en voiture
- accès A9, sortie de Sion-Est à 1'800 m., à 3 min. en voiture
Loisirs
- Tennis Club de Valère à 1'800 m.
- Tennis Club de Gravelone à 1'400 m.
- centre culturel alternatif de la ferme à Asile
- théâtre de Valère, et Petit Théâtre
- plusieurs musées
- 3 salles de cinéma à la Place de Cèdres
- piscine plein air de la Sitterie à 650 m.
- centre sportif de l’Ancien Stand : terrains de football, piste d’athlétisme, piscine et patinoire couvertes + piscine plein air Blancherie
- 2 centre de tennis avec aussi des courts couverts (Tourbillon et les Îles)
- 1 golf 18 trous / 1 manège
- 1 piste BMX à Châteauneuf-Sion
- Unique : centre Real Fly (site d’entrainement pour parachutistes)
- Unique : Alaïa Bay centre pour surf avec vagues artificielles, site des Îles
- Tennis Club de Gravelone à 1'400 m.
- centre culturel alternatif de la ferme à Asile
- théâtre de Valère, et Petit Théâtre
- plusieurs musées
- 3 salles de cinéma à la Place de Cèdres
- piscine plein air de la Sitterie à 650 m.
- centre sportif de l’Ancien Stand : terrains de football, piste d’athlétisme, piscine et patinoire couvertes + piscine plein air Blancherie
- 2 centre de tennis avec aussi des courts couverts (Tourbillon et les Îles)
- 1 golf 18 trous / 1 manège
- 1 piste BMX à Châteauneuf-Sion
- Unique : centre Real Fly (site d’entrainement pour parachutistes)
- Unique : Alaïa Bay centre pour surf avec vagues artificielles, site des Îles
Construction
Le descriptif de construction complet est à disposition, sur demande.
Les villas sont construites selon les normes énergétiques en vigueur avec une production de chaleur par pompe à chaleur.
Structure en béton/maçonnerie et/ou structure en bois, répondant aux exigences structurelles, sismiques et acoustiques.
Radiers en béton armé, dalles en béton armé sur certaines parties et charpente de bois sur d'autres.
Façades en béton avec isolation extérieure crépie et/ou en bois et/ou en ardoise fibro-ciment du type Eternit.
Fenêtres PVC-métal avec triple vitrage, type Internorm blanc à l’intérieur et couleur IGP à l'extérieur – valeurs thermiques selon les normes en vigueur. Chaque pièce possède une ouverture oscillo-battante ou des baies coulissantes.
Chauffage: Production de chaleur La production de chaleur sera réalisée par une pompe à chaleur géothermique.
Distribution de chaleur La distribution de chaleur est assurée par un chauffage au sol à basse température. Des collecteurs de chaleur installés dans chaque villa répartissent la chaleur dans les pièces.
Des compteurs de chauffage individuels sont installés dans chaque maison.
Ventilation de confort des pièces à double flux. Chaque villa dispose de son propre monobloc installé dans le dépôt au niveau de l’entrée.
Installation photovoltaïque: Installation de production d'électricité photovoltaïque solaire, onduleur adéquat, puissance installée pour les 4 villas : 30kWc.
Compteurs et facturation Fourniture et pose d'un compteur électrique principal, les compteurs individuels seront posés et facturés directement par le gestionnaire de la société de consommation.
Les villas sont construites selon les normes énergétiques en vigueur avec une production de chaleur par pompe à chaleur.
Structure en béton/maçonnerie et/ou structure en bois, répondant aux exigences structurelles, sismiques et acoustiques.
Radiers en béton armé, dalles en béton armé sur certaines parties et charpente de bois sur d'autres.
Façades en béton avec isolation extérieure crépie et/ou en bois et/ou en ardoise fibro-ciment du type Eternit.
Fenêtres PVC-métal avec triple vitrage, type Internorm blanc à l’intérieur et couleur IGP à l'extérieur – valeurs thermiques selon les normes en vigueur. Chaque pièce possède une ouverture oscillo-battante ou des baies coulissantes.
Chauffage: Production de chaleur La production de chaleur sera réalisée par une pompe à chaleur géothermique.
Distribution de chaleur La distribution de chaleur est assurée par un chauffage au sol à basse température. Des collecteurs de chaleur installés dans chaque villa répartissent la chaleur dans les pièces.
Des compteurs de chauffage individuels sont installés dans chaque maison.
Ventilation de confort des pièces à double flux. Chaque villa dispose de son propre monobloc installé dans le dépôt au niveau de l’entrée.
Installation photovoltaïque: Installation de production d'électricité photovoltaïque solaire, onduleur adéquat, puissance installée pour les 4 villas : 30kWc.
Compteurs et facturation Fourniture et pose d'un compteur électrique principal, les compteurs individuels seront posés et facturés directement par le gestionnaire de la société de consommation.
Rez inférieur
La villa est configurée comme suit:
- partie couverte pour deux véhicules à 4 roues
- entrée de la villa, hall
- bureau de 9,10 m2
- WC/lavabo visiteur et emplacement pour colonne de lavage
- escalier pour accès au 1er demi-niveau
- partie couverte pour deux véhicules à 4 roues
- entrée de la villa, hall
- bureau de 9,10 m2
- WC/lavabo visiteur et emplacement pour colonne de lavage
- escalier pour accès au 1er demi-niveau
Rez-de-jardin
La villa est configurée comme suit:
- grande cuisine murale avec ilot central et ouverte sur la salle à manger
- bel espace repas (29,80 m2) avec accès au balcon Nord
- agréable séjour (28 m2) côté jardin avec accès à la spacieuse terrasse de 43 m2
- escalier pour accès au 2ème demi-niveau
Rem: Il est tout à fait possible d'inverser les espaces de vie et prévoir la cuisine et la salle à manger côté Sud avec l'accès à la terrasse et au jardin et positionner le séjour côté Nord avec l'accès au petit balcon.
- grande cuisine murale avec ilot central et ouverte sur la salle à manger
- bel espace repas (29,80 m2) avec accès au balcon Nord
- agréable séjour (28 m2) côté jardin avec accès à la spacieuse terrasse de 43 m2
- escalier pour accès au 2ème demi-niveau
Rem: Il est tout à fait possible d'inverser les espaces de vie et prévoir la cuisine et la salle à manger côté Sud avec l'accès à la terrasse et au jardin et positionner le séjour côté Nord avec l'accès au petit balcon.
Rez supérieur
La villa est configurée comme suit (variante II, voire plans):
- 2 agréables chambres enfants ou invités côté Sud (de 12 et 13 m2)
- salle de bain/WC/lavabo
- escalier pour accéder au 3ème demi-niveau
- master-room côté Nord de plus de 18 m2 avec partie dressing et coin bureau
- 2 agréables chambres enfants ou invités côté Sud (de 12 et 13 m2)
- salle de bain/WC/lavabo
- escalier pour accéder au 3ème demi-niveau
- master-room côté Nord de plus de 18 m2 avec partie dressing et coin bureau
Particularités
- très agréable configuration en 4 demi-niveaux (ou triplex), idéale pour une ville de famille où chacun trouve son propre espace et son intimité.
- pompe à chaleur géothermique et collective pour les 4 villas, avec compteurs individuels
- installation de production d'électricité photovoltaïque solaire
- SITUATION idéale, au calme, en total retrait des nuisances et à seulement 10 min. à pied du sommet du Grand-Pont et de la vieille ville emblématique.
- les choix des matériaux et finitions sont en faveur du futur propriétaire.
- pompe à chaleur géothermique et collective pour les 4 villas, avec compteurs individuels
- installation de production d'électricité photovoltaïque solaire
- SITUATION idéale, au calme, en total retrait des nuisances et à seulement 10 min. à pied du sommet du Grand-Pont et de la vieille ville emblématique.
- les choix des matériaux et finitions sont en faveur du futur propriétaire.
Remarques
Le choix d’un bien immobilier, c’est une histoire de « coup de cœur » très personnelle entre vous et vos rêves …. Alors peut-être, à la lecture de cette plaquette, les premières pages sont-elles déjà écrites … ?
La visite de ce bien immobilier ne pourra s’effectuer qu’en présence de Madame Christel COMINA de la société COM’IN immobilier SA à Sion
Ce document ne peut pas être transmis à un tiers sans accord préalable de la Madame COMINA de COM'IN immobilier SA à Sion.
Ce document n’est pas un document CONTRACTUEL.
La visite de ce bien immobilier ne pourra s’effectuer qu’en présence de Madame Christel COMINA de la société COM’IN immobilier SA à Sion
Ce document ne peut pas être transmis à un tiers sans accord préalable de la Madame COMINA de COM'IN immobilier SA à Sion.
Ce document n’est pas un document CONTRACTUEL.
Commodités
Environnement
- Verdoyant
- Quartier résidentiel
- Commerces
- Banque
- Poste
- Restaurant(s)
- Pharmacie
- Arrêt de bus
- Entrée/sortie autoroute
- Enfants bienvenus
- Crèche/garderie
- Ecole maternelle
- Ecole primaire
- Ecole secondaire
- Haute école
- Centre sportif
- Manège
- Piscine publique
- Proche d'un golf
- Centre de tennis
- Sentiers de randonnée
- Musée
- Cinéma
- Salle de spectacle
- Hôpital / Clinique
- Médecin
Extérieur
- Balcon(s)
- Terrasse(s)
- Jardin
- Silencieux/tranquille
- Verdure
- Place(s) de parc couverte(s)
- Construit à flanc de colline
Intérieur
- Sans ascenseur
- Cuisine ouverte
- WC visiteurs
- Cave
- Réduit
- Triple vitrage
- Poutres apparentes
Equipement
- Cuisine équipée
- Cuisine agencée
- Cuisine avec îlot
- Branchements pour colonne de lavage
- Douche
- Baignoire
- Panneaux photovoltaiques
Sol
- A choix
- Carrelage
- Parquet
Etat
- Neuf
Exposition
- Nord
- Sud
Vue
- Belle vue
- Dégagée
Style
- Moderne









