Descriptif
Dans une nouvelle résidence de 8 appartements de haut standing, au cœur de la commune de Savièse (village de St-Germain), magnifique 3,5 pièces en ATTIQUE de 140 m2 à l'état de neuf (vente sur plan) bénéficiant d'une situation d'exception et dominante ainsi que d'une vue spectaculaire sur les Alpes et le village de St-Germain (vue à 180°). Aucun vis à vis et ensoleillement optimal tout au long de l’année du lever au coucher. Ce logement propose deux chambres de grande taille dont une "master-room" de 16 m2 + son dressing de 4,5 m2 et sa salle de douche privative. La deuxième chambre profite également d'une belle surface de 13,85 m2. Une deuxième salle de bain est à dispositions de chambre indépendante. Très généreuse pièce à vivre de 56 m2 intégrant une cuisine de choix et son équipement de premier ordre. La cuisine et son îlot central sont ouverts sur le séjour et l'espace repas qui profitent de grandes baies coulissantes donnant accès à la vaste terrasse de 59 m2 orientée plein Sud. Matériaux de grande qualité et de très bon goût. Sublime parquet chêne ou beau carrelage (à choix). La terrasse profite d'une totale intimité grâce aux murs de séparation et à la configuration en décalage léger des extérieurs. Tout a été minutieusement pensé pour faire profiter les futurs propriétaires d'une privacité appréciable.
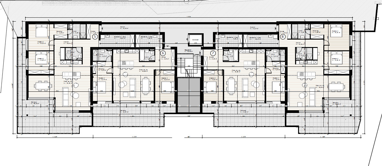
La résidence est scindée en deux parties avec une cage d'ascenseur et d'escaliers aérés et végétalisés au centre. Chaque appartement est doté de son entrée indépendante. L'ascenseur dessert chaque niveau de la résidence des couverts à voitures jusqu'aux deux niveaux des logements (rez + attique).
La vaste terrasse privative de 59 m2 offre un très généreux espace extérieur et privatif aménageable selon vos souhaits, la VUE d'Est en Ouest y est à couper le souffle. Ce superbe espace privatif extérieur consiste en un véritable prolongement de votre pièce à vivre, en toutes saisons au vu de sa parfaite exposition.
Un local cave/buanderie indépendant est accessible directement depuis votre appartement (10 m2). Tout se trouve sous votre main et à disposition directe, sur un seul et unique niveau.
Lieu de résidence privilégié parfaitement intégré dans son environnement entre plaine et montagne. Vente possible en RESIDENCE principale et SECONDAIRE.
Tout amateur de CALME absolu (accès par un chemin résidentiel se terminant en impasse), de VUE imprenable, de SOLEIL et d'INTIMITE ne pourra qu'être séduit par ce nouveau lieu de vie "premium".
Le centre de la commune et ses commodités est accessible en 3 minutes seulement (15 min. à pied) et la ville de Sion n’est qu’à 10 minutes en voiture.
Deux places de parc sous couvert sont disponibles à la vente pour cet appartement au prix de chf 30'000.-- /l'unité.
La résidence est scindée en deux parties avec une cage d'ascenseur et d'escaliers aérés et végétalisés au centre. Chaque appartement est doté de son entrée indépendante. L'ascenseur dessert chaque niveau de la résidence des couverts à voitures jusqu'aux deux niveaux des logements (rez + attique).
La vaste terrasse privative de 59 m2 offre un très généreux espace extérieur et privatif aménageable selon vos souhaits, la VUE d'Est en Ouest y est à couper le souffle. Ce superbe espace privatif extérieur consiste en un véritable prolongement de votre pièce à vivre, en toutes saisons au vu de sa parfaite exposition.
Un local cave/buanderie indépendant est accessible directement depuis votre appartement (10 m2). Tout se trouve sous votre main et à disposition directe, sur un seul et unique niveau.
Lieu de résidence privilégié parfaitement intégré dans son environnement entre plaine et montagne. Vente possible en RESIDENCE principale et SECONDAIRE.
Tout amateur de CALME absolu (accès par un chemin résidentiel se terminant en impasse), de VUE imprenable, de SOLEIL et d'INTIMITE ne pourra qu'être séduit par ce nouveau lieu de vie "premium".
Le centre de la commune et ses commodités est accessible en 3 minutes seulement (15 min. à pied) et la ville de Sion n’est qu’à 10 minutes en voiture.
Deux places de parc sous couvert sont disponibles à la vente pour cet appartement au prix de chf 30'000.-- /l'unité.
Situation
Sa situation d’exception sur les hauts de Saint-Germain, en plein coeur de Savièse, offre à ses 8 appartements une vue imprenable sur le Val d’Hérens et lui permet de bénéficier d’un ensoleillement optimal tout au long de l’année et de la journée.
La petite route d'accès jusqu'à la résidence se termine en impasse. Les seuls véhicules possibles sont ceux des résidents de cette petite rue résidentielle.
La petite route d'accès jusqu'à la résidence se termine en impasse. Les seuls véhicules possibles sont ceux des résidents de cette petite rue résidentielle.
Commune
Savièse est considérée comme l’une des communes les plus ensoleillées de Suisse. Située sur un magnifique plateau au-dessus de la ville de Sion, capitale du Valais, elle domine la plaine du Rhône.
Le panorama exceptionnel qu’offre le coteau Saviésan permettra aux futurs habitants de la résidence de jouir du spectacle de la nature tout au long des saisons.
C'est un lieu de vie idéal pour les personnes recherchant calme, vue, soleil et proximité avec les activités du valais central (ski, golf, VTT, randonnée, théâtre, cinéma, ...)
Sise sur la rive droite du Rhône et magnifique plateau ensoleillé, la commune de Savièse surplombe Sion, le chef-lieu du Valais. Constituée de six villages, son territoire si particulier s’étend de la plaine à la montagne et offre un cadre résidentiel chaleureux et idéal à ses habitants. Très proche de la ville et de ses commodités, Savièse a toutefois su conserver une forte empreinte villageoise enracinée dans un passé historique riche et passionnant, dont des traditions fortes ont traversé les siècles pour être aujourd’hui encore bien vivantes. La commune s’est aussi dotée d’infrastructures modernes et fonctionnelles répondant aux principaux besoins de sa population, la rendant attractive au point de voir sa population grandir rapidement durant la dernière décennie.
Savièse présente des paysages enchanteurs et pittoresques qui ont inspiré par le passé de nombreux peintres ayant séjourné sur la commune, et à l’origine d’un mouvement désormais connu sous l’appellation «Ecole des peintres de Savièse». Comme nombre de visiteurs, ces artistes sont littéralement tombés amoureux des vignobles en plateaux, des prairies entrecoupées de haies et de bosquets, des bisses et des torrents, des alpages étendus à perte de vue dans la région du Sanetsch, de la source de la Sarine et du glacier de Tsanfleuron. Autant de paysages qui font aujourd’hui la fierté d’une population et qui ont forgé les valeurs des Saviésannes et des Saviésans, ainsi qu’un caractère qui se résume en une devise, devenue celle de tous nos villages: «Pa capona», ce qui signifie «ne jamais abandonner».
D'une superficie de 7'109 ha, la Commune de Savièse est l’une des grandes régions viticoles du canton avec ses 274 ha de vignes. Son muscat fait rêver amateurs de fine goutte, musiciens et bien d'autres. Il a forgé la légende de l’hospitalité et de l’accueil saviésans, reconnus loin à la ronde.
Toutes les informations disponibles sur: www.saviese.ch
Le panorama exceptionnel qu’offre le coteau Saviésan permettra aux futurs habitants de la résidence de jouir du spectacle de la nature tout au long des saisons.
C'est un lieu de vie idéal pour les personnes recherchant calme, vue, soleil et proximité avec les activités du valais central (ski, golf, VTT, randonnée, théâtre, cinéma, ...)
Sise sur la rive droite du Rhône et magnifique plateau ensoleillé, la commune de Savièse surplombe Sion, le chef-lieu du Valais. Constituée de six villages, son territoire si particulier s’étend de la plaine à la montagne et offre un cadre résidentiel chaleureux et idéal à ses habitants. Très proche de la ville et de ses commodités, Savièse a toutefois su conserver une forte empreinte villageoise enracinée dans un passé historique riche et passionnant, dont des traditions fortes ont traversé les siècles pour être aujourd’hui encore bien vivantes. La commune s’est aussi dotée d’infrastructures modernes et fonctionnelles répondant aux principaux besoins de sa population, la rendant attractive au point de voir sa population grandir rapidement durant la dernière décennie.
Savièse présente des paysages enchanteurs et pittoresques qui ont inspiré par le passé de nombreux peintres ayant séjourné sur la commune, et à l’origine d’un mouvement désormais connu sous l’appellation «Ecole des peintres de Savièse». Comme nombre de visiteurs, ces artistes sont littéralement tombés amoureux des vignobles en plateaux, des prairies entrecoupées de haies et de bosquets, des bisses et des torrents, des alpages étendus à perte de vue dans la région du Sanetsch, de la source de la Sarine et du glacier de Tsanfleuron. Autant de paysages qui font aujourd’hui la fierté d’une population et qui ont forgé les valeurs des Saviésannes et des Saviésans, ainsi qu’un caractère qui se résume en une devise, devenue celle de tous nos villages: «Pa capona», ce qui signifie «ne jamais abandonner».
D'une superficie de 7'109 ha, la Commune de Savièse est l’une des grandes régions viticoles du canton avec ses 274 ha de vignes. Son muscat fait rêver amateurs de fine goutte, musiciens et bien d'autres. Il a forgé la légende de l’hospitalité et de l’accueil saviésans, reconnus loin à la ronde.
Toutes les informations disponibles sur: www.saviese.ch
Accès
Accès aisé depuis le coeur du village de St-Germain, commune de Savièse.
Petite route résidentielle se terminant en impasse 50 m. après ce petit coin de paradis.
Petite route résidentielle se terminant en impasse 50 m. après ce petit coin de paradis.
Commerces
Commerces de proximité: boucherie, boulangeries ainsi que les supermachés MIGROS et COOP à 5 min. en voiture. Cafés, restaurants, tea-room au village de St-Germain à seulement 15 min. à pied.
Ecole maternelle, école primaire, cycle d'orientation (centre scolaire de Moréchon), terrain de football au village de St-Germain à 15 - 20 min. à pied ou 4 mintues en bus.
Ecole maternelle, école primaire, cycle d'orientation (centre scolaire de Moréchon), terrain de football au village de St-Germain à 15 - 20 min. à pied ou 4 mintues en bus.
Transports
Arrêt de bus à 700 m.
Loisirs
- depuis l'appartement, départ à pied pour un nombreux choix de balades (par ex. le bisse de Lentine, vers le bas à 15 min. à pied, vers 3 autres bisses, situés plus haut, dont le célèbre Torrent neuf. Accès à la forêt et sur les chemins pédestres à diverses altitudes en seulement 5 minutes à pied.
- centre sportif : terrains de football, de tennis, piste d’athlétisme, parcours BMX 1'100 à ~1'300 m.
- 1 salle de spectacle « Le Baladin » (bon programme annuel) à 1'000 m.
- 1 salle polyvalente à ~ 1'100 m.
- centre sportif : terrains de football, de tennis, piste d’athlétisme, parcours BMX 1'100 à ~1'300 m.
- 1 salle de spectacle « Le Baladin » (bon programme annuel) à 1'000 m.
- 1 salle polyvalente à ~ 1'100 m.
Construction
Maçonnerie:
Les fondations, les murs extérieurs et les murs porteurs intérieurs sont en béton armé et en plots de ciment selon critères de l'ingénieur pour correspondre aux besoins statiques ainsi qu'aux normes parasismiques. Exception est faite pour les murs périphériques des deux attiques qui eux sont exécutés en ossature bois. Les radiers, les dalles et les escaliers sont exécutés en béton armé. Une étanchéité et une chemise filtrante sont installés contre les murs enterrés. Exécution de la cage d'ascenseur en béton armé.
Isolation thermique et façades:
Les murs extérieurs en béton des appartements sont isolés (180 mm) au moyen d'une isolation périphérique et les parties non enterrées revêtues d'un crépi. Les murs du rez inférieur ne sont pas isolés exceptés ceux du local technique. Une isolation thermique et dalle de roulement posées sur dalle des attiques. Revêtement de façades en ossature bois isolée (200 mm) avec coupe-vent, lambourdage et lames de façade en bois. Crépi extérieur sur isolation périphérique des murs en béton non enterrés. Isolation thermique des toitures posée sur lambrissage (200 mm).
Ferblanterie et couverture:
Etanchéité, lattage, contre lattage, couverture en tuiles anthracite.
Ferblanterie en aluminium thermolaqué.
Menuiserie:
Les fenêtres, portes-fenêtres et baies coulissantes en PVC blanc intérieur et Alu anthracite à l'extérieur.
Triple vitrage isolant.
Porte d'entrée de l'appartement isolée, couleur anthracite, verrouillage multipoint.
Exécution selon les normes phoniques en vigueur.
Charpente:
Les charpentes seront exécutées en bois massif et collé en sapin.
Lambrissage en lames sapin posé sur chevrons (charpente apparente).
Stores:
Stores à lamelles électriques avec télécommandes pour toutes les fenêtres des chambres.
Installation électrique:
Une prise extérieure sur la terrasse
Un tube vide en attente pour chargeur de véhicule par place de parc
Les toitures sur parking recevront des panneaux solaires photovoltaïques. Il est prévu que la production solaire serve d'abord à alimenter les communs (pompe à chaleur + éclairage). Le surplus pourra être consommé par les propriétaires de PPE selon le mode de faire précisé dans l'art. 17 alinéa 3 du règlement d'administration et d'utilisation de la PPE.
Panneaux solaires:
Des panneaux photovoltaïques seront posés en toiture des parking.
Chauffage:
La production de chaleur ainsi que celle de l'eau chaude sanitaire est assurée par une pompe à chaleur air/eau.
Le transfert d'énergie thermique dans les appartements se fait par le chauffage au sol.
Chaque appartement dispose d'une régulation de température individuelle (réglage par électrovannes et thermostat).
Ascenseur:
Un ascenseur pour 8 personnes desservant les trois niveaux du bâtiment (yc les couverts depuis la route d'accès) avec portes automatiques sera installé.
Budget pour les cuisines, les sanitaires et les revêtements de sols:
- cuisine pour le 4,5 pièces: chf 30'000.--(chez Gétaz Miauton à Sion)
- cuisine pour le 3,5 pièces: chf 25'000.--(chez Gétaz Miauton à Sion)
- sanitaires pour le 4,5 pièces ainsi que pour le 3,5 pièces: chf 15'500.-- (chez Gétaz Miauton à Sion)
- revêtement de sol pour les appartements: chf 120.--/m2 pour tout l'appartement, yc fourniture et pose
- revêtement de sol pour la buanderie/cave privative: chf 80.--/m2 yc fourniture et pose
Revêtement des terrasses:
Les terrasses sont en dalles céramiques, épaisseur 20 mm, section 60x60 cm, posées sur cales réglables. Teinte claire choisie par le constructeur.
Remarque: Ce descriptif est transmis sous réserve de modifications selon les adaptations du maître de l'ouvrage.
Les fondations, les murs extérieurs et les murs porteurs intérieurs sont en béton armé et en plots de ciment selon critères de l'ingénieur pour correspondre aux besoins statiques ainsi qu'aux normes parasismiques. Exception est faite pour les murs périphériques des deux attiques qui eux sont exécutés en ossature bois. Les radiers, les dalles et les escaliers sont exécutés en béton armé. Une étanchéité et une chemise filtrante sont installés contre les murs enterrés. Exécution de la cage d'ascenseur en béton armé.
Isolation thermique et façades:
Les murs extérieurs en béton des appartements sont isolés (180 mm) au moyen d'une isolation périphérique et les parties non enterrées revêtues d'un crépi. Les murs du rez inférieur ne sont pas isolés exceptés ceux du local technique. Une isolation thermique et dalle de roulement posées sur dalle des attiques. Revêtement de façades en ossature bois isolée (200 mm) avec coupe-vent, lambourdage et lames de façade en bois. Crépi extérieur sur isolation périphérique des murs en béton non enterrés. Isolation thermique des toitures posée sur lambrissage (200 mm).
Ferblanterie et couverture:
Etanchéité, lattage, contre lattage, couverture en tuiles anthracite.
Ferblanterie en aluminium thermolaqué.
Menuiserie:
Les fenêtres, portes-fenêtres et baies coulissantes en PVC blanc intérieur et Alu anthracite à l'extérieur.
Triple vitrage isolant.
Porte d'entrée de l'appartement isolée, couleur anthracite, verrouillage multipoint.
Exécution selon les normes phoniques en vigueur.
Charpente:
Les charpentes seront exécutées en bois massif et collé en sapin.
Lambrissage en lames sapin posé sur chevrons (charpente apparente).
Stores:
Stores à lamelles électriques avec télécommandes pour toutes les fenêtres des chambres.
Installation électrique:
Une prise extérieure sur la terrasse
Un tube vide en attente pour chargeur de véhicule par place de parc
Les toitures sur parking recevront des panneaux solaires photovoltaïques. Il est prévu que la production solaire serve d'abord à alimenter les communs (pompe à chaleur + éclairage). Le surplus pourra être consommé par les propriétaires de PPE selon le mode de faire précisé dans l'art. 17 alinéa 3 du règlement d'administration et d'utilisation de la PPE.
Panneaux solaires:
Des panneaux photovoltaïques seront posés en toiture des parking.
Chauffage:
La production de chaleur ainsi que celle de l'eau chaude sanitaire est assurée par une pompe à chaleur air/eau.
Le transfert d'énergie thermique dans les appartements se fait par le chauffage au sol.
Chaque appartement dispose d'une régulation de température individuelle (réglage par électrovannes et thermostat).
Ascenseur:
Un ascenseur pour 8 personnes desservant les trois niveaux du bâtiment (yc les couverts depuis la route d'accès) avec portes automatiques sera installé.
Budget pour les cuisines, les sanitaires et les revêtements de sols:
- cuisine pour le 4,5 pièces: chf 30'000.--(chez Gétaz Miauton à Sion)
- cuisine pour le 3,5 pièces: chf 25'000.--(chez Gétaz Miauton à Sion)
- sanitaires pour le 4,5 pièces ainsi que pour le 3,5 pièces: chf 15'500.-- (chez Gétaz Miauton à Sion)
- revêtement de sol pour les appartements: chf 120.--/m2 pour tout l'appartement, yc fourniture et pose
- revêtement de sol pour la buanderie/cave privative: chf 80.--/m2 yc fourniture et pose
Revêtement des terrasses:
Les terrasses sont en dalles céramiques, épaisseur 20 mm, section 60x60 cm, posées sur cales réglables. Teinte claire choisie par le constructeur.
Remarque: Ce descriptif est transmis sous réserve de modifications selon les adaptations du maître de l'ouvrage.
Rez-de-chaussée
Le local technique est prévu sur ce même niveau.
Rez supérieur
- grand couvert à voitures avec 16 places privatives pour les 8 lots d'appartements (soit deux unités par appartement)
- zone parc vélos
- 3 places visiteurs non couvertes
- zone parc vélos
- 3 places visiteurs non couvertes
Combles
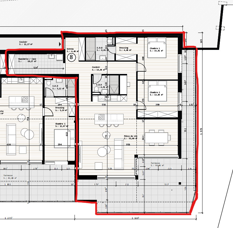
Ce superbe ATTIQUE configuré en 3,5 pièces (orienté Sud et Est) se présente comme suit:
- Sasse d'entrée avec une grande armoire-dressing intégrée
- accès depuis le sasse d'entrée au local privatif englobant la buanderie et l'espace cave/rangement
- couloir de distribution vers les chambres et les salles d'eau
- dégagement sur la spacieuse et lumineuse pièce à vivre de 56 m2
- cuisine de belle gamme toute équipée avec son îlot central
- grandes baies vitrées donnant accès à la spacieuse terrasse de 59 m2
- agréable espace repas Sud-Est
- chambre II Est de 13,84 m2 avec accès à la terrasse
- superbe master-room de 15,91 m2, son dressing de 4,48 m2 et sa salle de douche privative de 6 m2
- 2ème salle de bain à disposition de la 2ème chambre
- petit espace bureau intégré dans le couloir Nord-Sud côté Est
Remarque: La généreuse terrasse (59 m2) totalement abritée (très grands avant-toits) Sud et Est consiste en un véritable prolongement de votre espace de vie et vous offre des perspectives de vue à être enviées par tous.
- Sasse d'entrée avec une grande armoire-dressing intégrée
- accès depuis le sasse d'entrée au local privatif englobant la buanderie et l'espace cave/rangement
- couloir de distribution vers les chambres et les salles d'eau
- dégagement sur la spacieuse et lumineuse pièce à vivre de 56 m2
- cuisine de belle gamme toute équipée avec son îlot central
- grandes baies vitrées donnant accès à la spacieuse terrasse de 59 m2
- agréable espace repas Sud-Est
- chambre II Est de 13,84 m2 avec accès à la terrasse
- superbe master-room de 15,91 m2, son dressing de 4,48 m2 et sa salle de douche privative de 6 m2
- 2ème salle de bain à disposition de la 2ème chambre
- petit espace bureau intégré dans le couloir Nord-Sud côté Est
Remarque: La généreuse terrasse (59 m2) totalement abritée (très grands avant-toits) Sud et Est consiste en un véritable prolongement de votre espace de vie et vous offre des perspectives de vue à être enviées par tous.
Particularités
- situation de premier ordre dans un quartier résidentiel et très privilégié de St-Germain profitant d'un CALME ABSOLU et d'une VUE PANORAMIQUE d'Est en Ouest.
- chemin d'accès se terminant en impasse, seuls les résidents empruntent ce chemin.
- résidence de standing élevé aux finitions haut de gamme
- construction répondant aux impératifs de confort énergétique, acoustique et au souci d'offrir des appartements répondant aux besoins actuels et exigeants des clients.
- entreprises connues et locales d'excellentes dont les réputations ne sont plus à faire
- petite PPE de seulement 8 lots scindée en deux partie avec la cage centrale extérieure de l'ascenseur/escaliers
- vastes terrasses privatives légèrement décalées pour offrir une belle intimité à chaque résident
- entrée indépendante et intimiste pour chaque appartement
- matériaux de qualité supérieure et de très bon goût
- magnifique cuisine de premier ordre ainsi que son équipement de grande qualité
- fenêtres et baies coulissantes en triple vitrage (PVC blanc intérieur et alu anthracite à l'extérieur)
- lumière naturelle pour l'ensemble de vos pièces, accès à la terrasse de chacune des pièces
- panneaux solaires photovoltaïques sur la toiture des couverts à voiture / système de chauffage par pompe à chaleur air-eau
- local buanderie/cave individuel pour chaque lot et accessible depuis le sasse d'entrée de votre appartement (10 m2)
- ascenseur desservant chaque niveau depuis les couverts à voitures
- très élégant immeuble de couleur gris taupe avec ses spacieuses terrasses profitant de très généreux avant-toits s'intégrant parfaitement dans son environnement naturel
Deux places de parc sous couvert sont disponibles à la vente pour cet appartement au prix de chf 30'000.-- /l'unité.
Les appartements seront livrés entre novembre 2027 et mars 2028.
- chemin d'accès se terminant en impasse, seuls les résidents empruntent ce chemin.
- résidence de standing élevé aux finitions haut de gamme
- construction répondant aux impératifs de confort énergétique, acoustique et au souci d'offrir des appartements répondant aux besoins actuels et exigeants des clients.
- entreprises connues et locales d'excellentes dont les réputations ne sont plus à faire
- petite PPE de seulement 8 lots scindée en deux partie avec la cage centrale extérieure de l'ascenseur/escaliers
- vastes terrasses privatives légèrement décalées pour offrir une belle intimité à chaque résident
- entrée indépendante et intimiste pour chaque appartement
- matériaux de qualité supérieure et de très bon goût
- magnifique cuisine de premier ordre ainsi que son équipement de grande qualité
- fenêtres et baies coulissantes en triple vitrage (PVC blanc intérieur et alu anthracite à l'extérieur)
- lumière naturelle pour l'ensemble de vos pièces, accès à la terrasse de chacune des pièces
- panneaux solaires photovoltaïques sur la toiture des couverts à voiture / système de chauffage par pompe à chaleur air-eau
- local buanderie/cave individuel pour chaque lot et accessible depuis le sasse d'entrée de votre appartement (10 m2)
- ascenseur desservant chaque niveau depuis les couverts à voitures
- très élégant immeuble de couleur gris taupe avec ses spacieuses terrasses profitant de très généreux avant-toits s'intégrant parfaitement dans son environnement naturel
Deux places de parc sous couvert sont disponibles à la vente pour cet appartement au prix de chf 30'000.-- /l'unité.
Les appartements seront livrés entre novembre 2027 et mars 2028.
Remarques
Le choix d’un bien immobilier, c’est une histoire de « coup de cœur » très personnelle entre vous et vos rêves …. Alors peut-être, à la lecture de cette plaquette, les premières pages sont-elles déjà écrites … ?
La visite de ce bien immobilier ne pourra s’effectuer qu’en présence de Madame Christel COMINA de la société COM’IN Immobilier SA à Sion
Ce document ne peut pas être transmis à un tiers sans accord préalable de la Madame COMINA.
Ce document n’est pas un document CONTRACTUEL
La visite de ce bien immobilier ne pourra s’effectuer qu’en présence de Madame Christel COMINA de la société COM’IN Immobilier SA à Sion
Ce document ne peut pas être transmis à un tiers sans accord préalable de la Madame COMINA.
Ce document n’est pas un document CONTRACTUEL
Commodités
Environnement
- Quartier de villas
- Verdoyant
- Quartier résidentiel
- Commerces
- Banque
- Poste
- Restaurant(s)
- Pharmacie
- Arrêt de bus
- Enfants bienvenus
- Crèche/garderie
- Ecole primaire
- Centre sportif
- Proche d'un golf
- Sentiers de randonnée
- Terrain de football
- Salle de spectacle
- Hôpital / Clinique
- Médecin
Extérieur
- Terrasse(s)
- Silencieux/tranquille
- Verdure
- Réduit
- Place(s) de parc couverte(s)
- Place(s) de parc visiteur(s)
Intérieur
- Ascenseur
- Cuisine ouverte
- Cave
- Triple vitrage
- Lumineux
- Lumière naturelle
- Poutres apparentes
Equipement
- Cuisine équipée
- Cuisine agencée
- Plaques à induction
- Four
- Four à vapeur
- Réfrigérateur
- Congélateur
- Lave-vaisselle
- Branchements pour colonne de lavage
- Douche
- Téléphone
- Téléréseau
- Satellite
- WiFi
- Connexion Internet
- Fibre optique
- Interphone
Sol
- A choix
- Parquet
Etat
- Neuf
Exposition
- Sud
- Est
Ensoleillement
- Optimal
- Toute la journée
Vue
- Belle vue
- Dégagée
- Imprenable
- Panoramique
- Sans vis-à-vis
- Montagnes
- Alpes
Style
- Moderne










